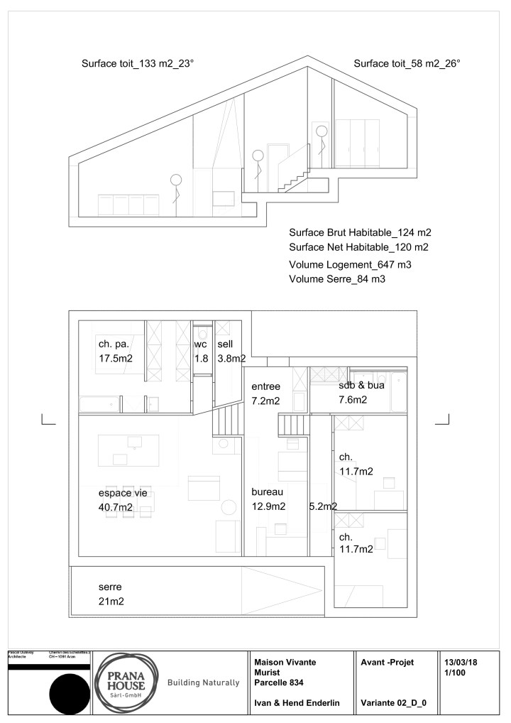
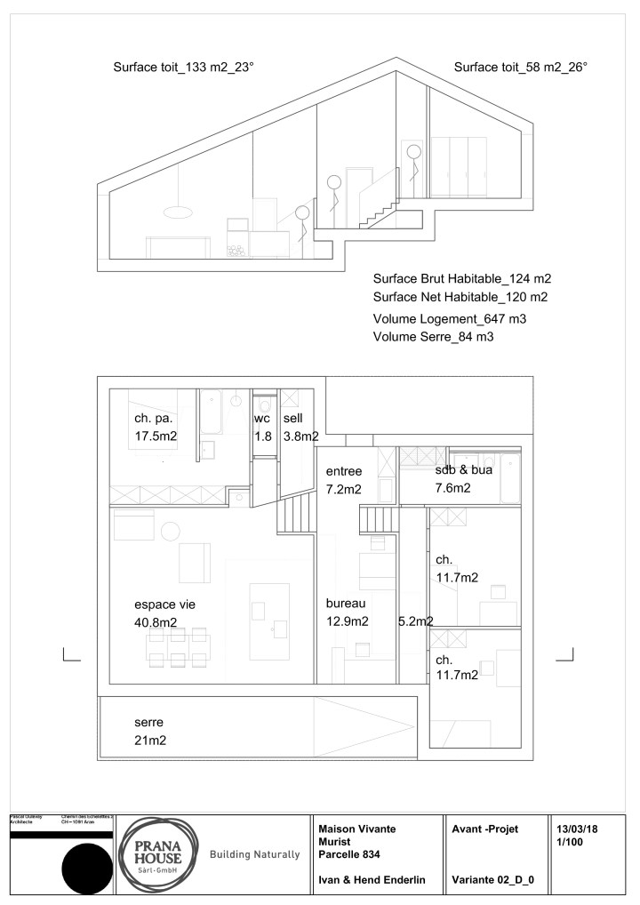
Et c’est parti pour une nouvelle réunion ! Pascal Oulevay (architecte) assure vraiment, il maintient le rythme, nous échangeons beaucoup d’informations, les discussions sont rapides et précises. Voici les dernières propositions, en commençant par deux variantes :


À la fin de ce rendez-vous, nous avons opté pour un mélange des deux variantes.
Nous ne sommes pas encore convaincu par la suite parentale (sur aucune des variantes).
Nous avons revu notre budget et nous pouvons nous permettre d’agrandir la maison. Notons que l’exercice est intéressant : à chaque réunion, la maison a une surface et un volume de plus en plus petit, mais il y a de plus en plus de pièces et de place — étrangement. Maintenant que le budget a été re-calculé (encore un peu grossièrement, mais plus précis que les versions précédentes), nous pouvons ré-agrandir la maison.
La cheminée devrait être déplacée à droite de la cuisine. En réalité, nous irions pour un poêle de masse, qui offre un bien meilleur rendement et est nettement plus efficace d’un point de vue calorifique. Au niveau technique c’est également plus simple :
- proche du boiler (pour chauffer l’eau si plus de soleil) ;
- proche de la cuisine (pour chauffer à manger si plus d’électricité) ;
- flammes visibles depuis partout dans l’espace de vie — y compris le salon — et le bureau, ce qui sera très agréable.
La disposition de l’espace de vie sur la première variante est celle que nous avons retenue.
Et il est aussi temps de parler des fenêtres. Il y a beaucoup de possibilités, et le document ci-dessous est une proposition.

En haut à gauche, c’est la face Nord. En haut à droite, c’est la face Est (chambres des enfants sur la gauche). En bas à gauche, c’est la face Sud avec la serre. En bas à droite, c’est la face Ouest (notre chambre à gauche, l’espace de vie à droite avec la serre).
La partie délicate est la statique du bâtiment. Nous avons une serre très grande (qui sert aussi de chauffage passif), et il faut bien porter le toit ! C’est plutôt le côté Ouest qui peut devenir un peu délicat. Des calculs et des simulations sont en cours.
Nous sommes plus enclin à avoir des fenêtres avec des bords importants pour pouvoir s’y assoir ou s’y allonger. Ça devrait être agréable en hiver quand la lumière se fait plus rare !
Nous avons énormément discuté de pas mal de détails. Pour le prochain rendez-vous, nous devons venir avec des propositions de matériaux pour les sols, les murs, et les façaces. Nous sommes assez amoureux de certains parquets (avec du bois de la région bien sûr), comme le chêne ou le liège, et aussi certaines finitions en terre et chaux pour les murs. À voir !