Deuxième rendez-vous, et premier pour l’avant-projet. Nous changeons d’échelle par rapport à la recherche de partis, et nous itérons sur la version que nous avons retenue. Voici ce qui a été proposé :

Notons que le dénivelé entre les niveaux est moins important que sur la version précédente. Nous avons obtenu des relevés topologiques plus précis, et la pente naturelle du terrain est moins importante qu’estimée.
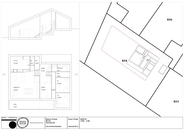
Nous avons fait nos différents retours. Nous avons relevé les points principaux suivants :
- la cuisine « ferme » le bureau de l’espace de vie, nous aimerions le déplacer au nord-ouest de cette pièce ;
- la suite parentale est trop petite (pas assez de place pour le dressing, il faut savoir que nous n’avons pas de cave, donc tous les vêtements seront rangés dans notre chambre et celles des enfants) ;
- pour bien utiliser le volume sous le toit, nous pouvons déplacer le local technique au-dessus des WC et du sellier, ce qui permet d’agrandir les chambres des enfants ;
- pour la buanderie, nous voulons suspendre le linge en hauteur, sous le plafond, toujours pour bien utiliser les volumes ;
- pour le bureau, nous aimerions qu’il soit transformable en chambre d’amis facilement et rapidement, donc de pouvoir ranger un lit sous le couloir (il y a la place dans le dénivelé des niveaux).
Il y a encore une multitude de retours que nous avons fait, mais voici les principaux.
Voici la proposition que nous avons esquissé pour l’espace de vie :

La cuisine peut aller dans la partie nord-ouest. C’était impossible avant car nous voulions une cheminée traversante entre l’espace de vie et notre chambre, mais ça n’est pas intéressant du tout d’un point de vue thermique. La cheminée sera là uniquement en cas de coup durs (pas assez d’électricité produite, 20 jours consécutifs à -10°C etc.). Il faut qu’elle offre un bon rendement. Nous décidons de la déplacer à côté de l’escalier, en connaissant la contrainte de l’évacuation : un gros tuyaux qui risque de s’imposer au milieu de la pièce. À voir s’il n’est pas possible de la positionner autre part.
La cuisine s’articule autour d’un ilôt central imposant. Toute la famille et les amis sont en relation lorsque nous faisons à manger. Le bureau est ouvert sur l’espace de vie, le salon est ouvert sur la serre au sud et sur la vue du Jura à l’ouest, pareil pour la table à manger. La cuisine est aussi très proche de la terrasse à l’ouest (non représentée sur le plan).
Le prochain rendez-vous est dans une semaine. Nous itérons rapidement, le temps presse. Nous devons quitter notre logement actuel en juin 2019.