Premier rendez-vous ! Ça y est, c’est parti !
Aujourd’hui Pascal Oulevay (architecte) nous propose les premières variantes pour les plans de la maison. Il s’est inspiré des plans que nous avions faits préalablement. Nous sommes loin d’être des professionnels, mais ces plans avaient l’unique vocation d’exprimer la plupart de nos contraintes, ou simplement d’illustrer certaines de nos envies, mais aussi d’avoir une idée de nos besoins, des surfaces nécessaires etc. Ça concrétise notre envie. Les deux images sont là pour l’historique :
Nous avons utiliser un logiciel gratuit, qui est très simple, et qu’on a réussi à prendre en main en moins de 10mn. Vous pouvez consulter le « pré-plan » en 2D ou 3D.
Pascal s’est rapidement approprié notre pré-plan et est revenu nous voir quelques jours plus tard avec 4 variantes. Le langage utilisé est très haut niveau. L’échelle est élevée. Pas de détails, juste pour donner une idée de la géométrie, ce qu’on aimerait, ce qu’on n’aimerait pas. Les voici commentées.
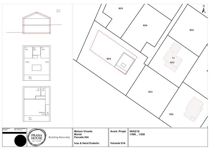
Variante 1A

On est très proche de notre pré-plan. Le terrain étant en légère pente dans sa partie nord-est, la maison devrait être en partie encastrée dans le sol. Toute une partie n’aurait donc pas de lumière et serait froide, l’entrée se ferait au niveau de l’étage parmi les chambres et le bureau (loin de la cuisine et de l’espace de vie), et dégager autant de terre ne s’inscrit clairement pas dans une approche écologique. Les murs utilisent la paille comme isolant, il faut que ça respire et que ça ne soit pas encastrée pour éviter l’humidité.
Nous n’étions pas attachés à ce pré-plan. Il servait uniquement à exprimer des envies, qui peuvent prendre une toute autre forme. La démarche de mettre cette variante sur le terrain montre que ça ne convient tout simplement pas.
Variante 1B

Histoire de ne pas se dire que le « pré-plan » ne convient pas du tout, Pascal a proposé une variante autour de cette idée. La maison est placée différement sur le terrain dans ce cas. Mais non, ça ne nous convient toujours pas.
Variante 2 (retenue)

Cette variante est celle qui a été retenue. Elle nous plaît beaucoup pour plusieurs raisons.
Un seul étage. Tout d’abord, le maison est posée sur le terrain, et non plus creusée. Pas d’excavation, ce qui est très important dans une démarche écologique. Il faut toucher le moins possible à la terre. Il y a une véritable vie souterraine que nous ne voulons pas tuer. En plus, l’excavation a un prix très important. Non seulement il faut creuser, mais il faut bétonner pour faire tenir tout ça. Les pièces qui seront au sous-sol devront être isolées sous peine d’être très fraîche. Le plafond du sous-sol devra lui aussi être très isolé. Le sol au rez sera probablement très frais, ce qui demande soit une couche d’isolant importante, soit une masse thermique (et donc une épaisseur importante, donc des renforts pour soutenir cette masse), soit un chauffage au sol. Il faudra aussi un escalier, et tout un équipement pour les pièces. En général, le boiler se trouve également dans les sous-sol, donc il faut des pompes pour ramener l’eau etc. Pour rappel, nous ne voulons pas de chauffage et le moins de béton possible ; ce dernier étant un gros polueur. Certes, il y aurait des alternatives, mais c’est ce compliquer la vie pour rien. Le terrain est grand, une pente naturelle, pas besoin de cave…
Un seul étage sur trois petits niveaux. L’idée d’utiliser la pente pour avoir trois petits niveaux (1m de dénivelé ici) est très malin. Les différentes pièces dans cet énorme volume seront séparées par des niveaux et non pas par des murs. Très astucieux ! Les chambres à l’ouest auront quand même un mur, mais l’entrée, le bureau, et l’espace de vie (qui comprend la cuisine, la salle à manger, le salon et l’espace de jeu pour les enfants) sont tous complètement ouverts.
Chambres des enfants éloignées de notre chambre. Cette contrainte apparaît clairement ici. Notre chambre est loin de celles des enfants, et c’était un souhait.
Serre. La serre est plein sud, et un poil à l’ouest. C’est parfait pour l’hiver. Pour l’été ça sera un peu chaud, mais avec quelques arbres tout ira bien. Toutes les pièces donnent sur la serre, et comme ce sera notre chauffage passif, c’est parfait. Seule une chambre n’a pas de cloison en commun avec, mais nous prévoyons des murs chauffants dans ce cas.
Espace de vie. Il est orienté sur la serre, et sur l’ouest, qui nous offre une vue magnifique sur le Jura et le reste du terrain. Ce sera magnifique !
Entrée. Elle se fait à la moitié de la maison, après quelques marches (environ une demi-douzaine), c’est nickel. La pente naturelle du terrain ne se fera quasiment pas sentir, contrairement au cas d’une maison sur deux étages.
Bref, nous pourrions en raconter encore plus, mais c’est assez fabuleux de voir que toutes les contraintes sont respectées, que les vues sur le terrain et le Jura, l’ensoleillement, la distribution des pièces, un très grand volume, … tout est respecté !
Variante 3

C’est une variante autour de la précédente pour essayer de réduire la surface et le volume, mais ça ne nous a pas convaincu.
Conclusion
Nous partons sur la variante 2 ! Il manque des pièces, certaines surfaces sont trop petites, mais c’est une première base très solide. C’est parti pour la suite !
Une réflexion sur “#1 Recherche de partis”